new york >
manhattan >
housing by dealer >
real estate - by broker
Posted 2025-11-21 14:17
Contact Information:
QR Code Link to This Post
post id: 7897432482
posted: 2025-11-21 14:17
updated: 2025-11-25 11:58
♥ best of [?]
refresh the page.
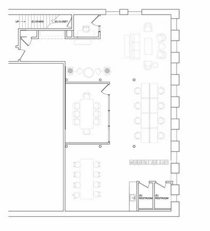
Over 3500sqft of pristine elegance includes 1 office, 1 conference room and open space for your business. Easy contract and 3 year term. NO FEE. No brokers, Principals only. This will go fast!